所有権
土地 品川区小山2丁目
1億9,500萬日元
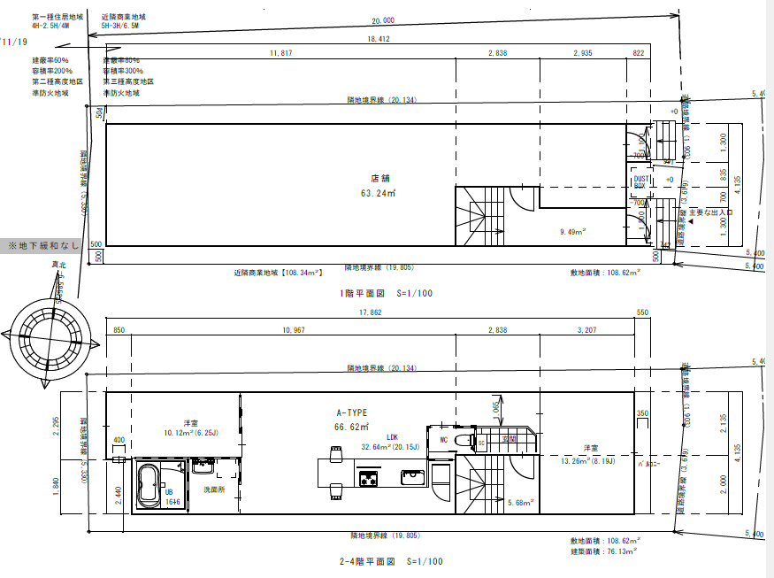
提供四层钢筋混凝土公寓楼及附属零售空间的参考楼层平面图。
物件概要
所在地:東京都 品川区 小山二丁目5-1
建筑名称:土地 品川区小山2丁目
城南地区的历史
- 价格
- 1億9,500萬日元
- 现况
- 空地
- 车站步行
- 从东急目黑线武藏小山站步行5分钟即可到达。
从东急目黑线不动前站步行11分钟即可到达。
物件详细信息
- 土地面积
- 108.65㎡
- 土地面积测量方式
- 公簿
- 交房条件
- 空地交房
- 交房时期
- 商量
- 登记簿地目
- 住宅用地
- 土地权利
- 所有権
- 地域地区
- 准防火
- 建蔽率
- 79%
- 容积率
- 299%
- 地势特征
- 平地
- 交易型态
- 一般媒介
- 临接道路状况
-
东边 公道 宽度:5.4m (接面5.5m)
- 备考
- N4301
- 电,煤气
- 都市瓦斯
- 自来水
-
饮用水:公营水道
污水:公共下水道
杂排水:公共下水道
雨水:公共下水道
最终更新日 2026年3月16日
本物件相关查询