中古华厦/大楼
志村坂上公园高地
4,100萬日元
目前已出租,位于一楼临街商铺,位置极佳,符合新的抗震标准,并且距离志村银座商店街非常近。
物件概要
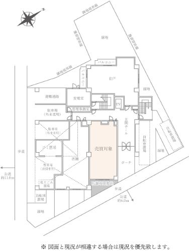
所在地:東京都 板橋区 志村一丁目33-2
建筑名称:志村坂上公园高地 102
城北地区的历史
- 价格
- 4,100萬日元
- 专有面积
- 56.93㎡
- 表面回报率
- 5.56%
- 房龄
- 43年(1983年11月)
- 建物结构
- SRC造
- 户型
- 1R
- 现况
- 居住中
- 车站步行
- 从都营三田线志村坂上站步行4分钟即可到达。
物件详细信息
- 修缮公积金
- 8,400日元/月
- 固定资产税 都市计画税
- 65,900日元/年
- 年间想租金
- 2,280,000日元
- 管理型态
- 全部委托管理公司
- 管理费
- 12,120日元/月
- 管理状况
- 白班/轮班制
- 面积测量方式
- 壁芯
- 地上楼层
- 8階
- 所在楼层
- 1階
- 主照明面
-
东南 阳台无
- 总户数
- 40戸
- 停车场
- 无
- 自行车停车场
- 无
- 交房时期
- 商量
- 都市计画
- 市街化区域
- 用途地区
- 商业地域
- 土地权利
- 所有権
- 交易型态
- 一般媒介
- 备考
- 其他费用:2,550日元/月 N4351“无限”
- 电,煤气
- 都市瓦斯
- 自来水
-
饮用水:公营水道
污水:公共下水道
杂排水:公共下水道
雨水:公共下水道
- 建物设备
- 电梯
最终更新日 2026年4月8日
本物件相关查询